Разматыватель для трубы

В данном разделе обсуждаются вопросы, связанные с продукцией Uni-fitt.

Модераторы: Генералиссимус, Вадим Никольский, Administrator

Ответить
NikitkaS
Сообщения: 7
Зарегистрирован: Чт апр 27, 2023 4:14 pm
Город: Москва

Разматыватель для трубы

Сообщение NikitkaS »

Добрый день.
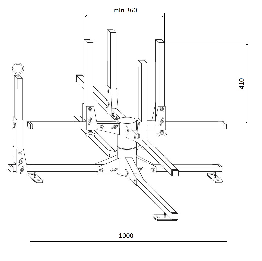
Разматыватель для трубы в бухтах. Артикул: 980P5001.
На сайте не указаны максимальный и минимальный внешний и внутренний диаметры бухты, не могли бы уточнить?
poluektov
Сообщения: 63
Зарегистрирован: Пт янв 28, 2022 11:42 am
Город: Жуковский

Re: Разматыватель для трубы

Сообщение poluektov »

Диаметр бухты внутренний может быть от 360 мм до 720 мм, внешний диаметр бухты не более 1000 мм

Размеры указаны на рис.
Вложения
размеры.jpg
Ответить

Вернуться в «Uni-fitt»