Насосно-смесительная группа SOLOMIX Uni-Fitt

В данном разделе обсуждаются вопросы, связанные с продукцией Uni-fitt.

Модераторы: Генералиссимус, Вадим Никольский, Administrator

Diminator
Сообщения: 8
Зарегистрирован: Пт сен 30, 2016 2:17 pm
Город: Москва

Насосно-смесительная группа SOLOMIX Uni-Fitt

Сообщение Diminator »

Приобрел насосную группу SOLOMIX Uni-Fitt с коллектором для теплого пола. Собрали пол, все работало отлично, сейчас запустили радиаторное отопление и теплый пол не прогревается, выше 20 градусов не поднимается даже если открутить термоголовку. Видимо насос радиаторов отбирает поток. На группе есть регулировка, но не могу понять для чего она. Подскажите как исправить ситуацию?
Diminator
Сообщения: 8
Зарегистрирован: Пт сен 30, 2016 2:17 pm
Город: Москва

Re: Насосно-смесительная группа SOLOMIX Uni-Fitt

Сообщение Diminator »

Еще вопрос, для чего нужна вот эта регулировка?
Вложения
P_20160901_205856_small.jpg
Аватара пользователя
Генералиссимус
Технический специалист
Сообщения: 1509
Зарегистрирован: Ср июл 23, 2008 9:20 am
Город: Красногорск
Откуда: Мазилово

Re: Насосно-смесительная группа SOLOMIX Uni-Fitt

Сообщение Генералиссимус »

Добрый день,
Регулировка, показанная Вами на снимке, изменяет проток в байпасе. При установке в положение 5 проток по байпасу будет максимальным. В этом положении происходит максимальная теплоотдача. Поэтому попробуйте установить регулятор байпаса в положение 5.
Возможно, что после подключения радиаторного отопления, перестало хватать теплового потока для того, чтобы достаточно прогревалась система напольного отопления. Сообщите, пожалуйста, параметры Вашей системы теплого пола, радиаторного отопления и котла.
"Всё для всего и всегда!"
Suslov Vasilii
Сообщения: 499
Зарегистрирован: Ср фев 25, 2009 6:09 pm
Город: Москва

Re: Насосно-смесительная группа SOLOMIX Uni-Fitt

Сообщение Suslov Vasilii »

Diminator, добрый день!
теплый пол не прогревается
Недостаточно информации, можете нарисовать схему отопления?
для чего нужна вот эта регулировка?
Для настройки работы насосно-смесительной группы. Позволяет повысить её мощность до 12,5 кВт.
Назначение элементов и инструкция по настройке есть в паспорте на изделие, который лежит и в коробке с группой, и на сайте производителя.
Diminator
Сообщения: 8
Зарегистрирован: Пт сен 30, 2016 2:17 pm
Город: Москва

Re: Насосно-смесительная группа SOLOMIX Uni-Fitt

Сообщение Diminator »

Схему пришлю чуть позже. А в какую сторону крутить регулировку? По часовой или против? И как понять какая сейчас регулировка установлена ?
Suslov Vasilii
Сообщения: 499
Зарегистрирован: Ср фев 25, 2009 6:09 pm
Город: Москва

Re: Насосно-смесительная группа SOLOMIX Uni-Fitt

Сообщение Suslov Vasilii »

Крутить в любую сторону. Совмещение с риской на корпусе указывает положение клапана. На фото видно положение №3
Diminator
Сообщения: 8
Зарегистрирован: Пт сен 30, 2016 2:17 pm
Город: Москва

Re: Насосно-смесительная группа SOLOMIX Uni-Fitt

Сообщение Diminator »

Что-то не получается прислать данные. У меня огромный пдф фаил в котором весь проект дома в том числе и отопление.
Может быть что-то конкретное выписать? По ТП у меня такая информация: Это то что нужно или нет?
Вложения
Снимок000.JPG
Suslov Vasilii
Сообщения: 499
Зарегистрирован: Ср фев 25, 2009 6:09 pm
Город: Москва

Re: Насосно-смесительная группа SOLOMIX Uni-Fitt

Сообщение Suslov Vasilii »

Это информация по нагрузке на участки ТП. Хорошо, что есть, но сейчас нужно другое.
В проекте должна быть схема системы отопления и детальные схемы её участков.
Выложите их, здесь или на какой-либо файлообменник.
Diminator
Сообщения: 8
Зарегистрирован: Пт сен 30, 2016 2:17 pm
Город: Москва

Re: Насосно-смесительная группа SOLOMIX Uni-Fitt

Сообщение Diminator »

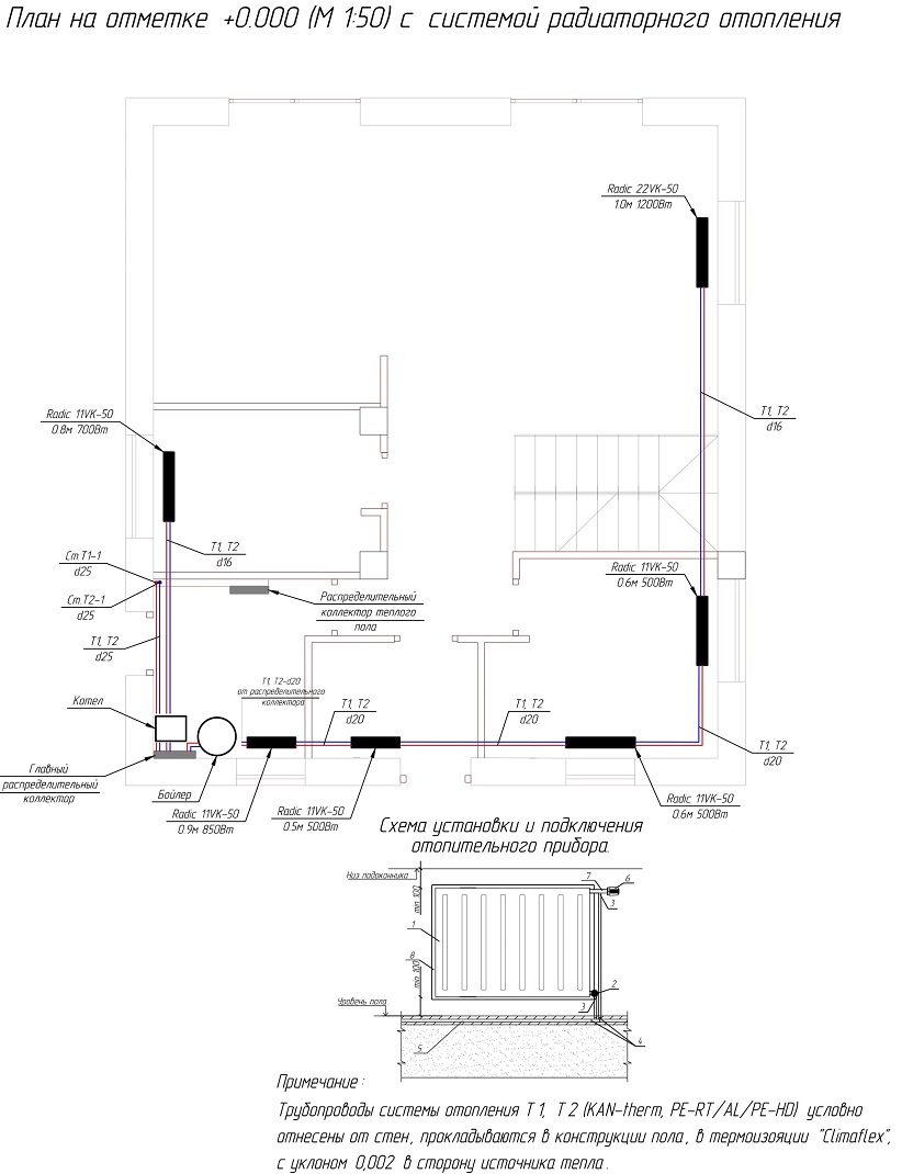
Это оно?

Часть касающуюся теплого пола заменили на SOLOMIX Uni-Fitt.
Вложения
10-1.jpg
5-1.jpg
4-1.jpg
3-1.jpg
Suslov Vasilii
Сообщения: 499
Зарегистрирован: Ср фев 25, 2009 6:09 pm
Город: Москва

Re: Насосно-смесительная группа SOLOMIX Uni-Fitt

Сообщение Suslov Vasilii »

Да, это оно.
Если честно - не понял смысла использования насосно-смесительной группы на коллекторах ТП (поз.2), если есть насосно-смесительный модуль на 1 основном коллекторе...
(следующие вопросы - на след.странице)
Вложения
Безымянный2.png
Безымянный2.png (44.25 КБ) 28859 просмотров
Безымянный1.png
Последний раз редактировалось Suslov Vasilii Чт окт 06, 2016 3:35 pm, всего редактировалось 1 раз.
Ответить

Вернуться в «Uni-fitt»